OKAL Vorteilstage - jetzt von bis zu 49.000 EUR Preisvorteil profitieren*******
Zusätzliche Informationen
Leichter finanzieren. Sicher einziehen.
Mit bis zu 49.000 EUR Preisvorteil für Ihr neues Zuhause.
Sichern Sie sich einen unschlagbaren Preisvorteil von bis zu 49.000 EUR auf unsere Aktionshäuser.*
Wir möchten Ihnen nicht nur ein Haus, sondern ein Zuhause schaffen, in dem Sie sich rundum wohlfühlen. Um dieses Ziel zu erreichen haben wir exklusive Häuser für Sie ausgewählt, die nicht nur dank des unschlagbaren Aktionspreises attraktiv sind, sondern sich auch durch ihre herausragende Qualität und ihr zeitloses Design auszeichnen.
Beschreibung
OKAL Vorteilstage vom 1.12.-28.02.2026. Küche und Bodenplatte inklisive.
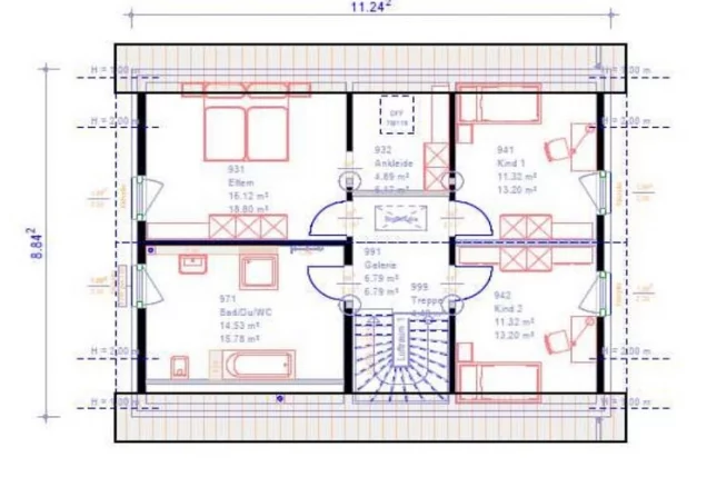
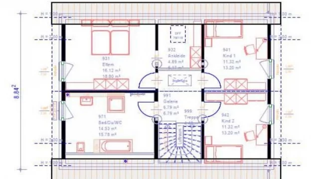
Ein echter Blickfang des Design 12 ist die Fassade, die durch ihre farbige Gestaltung zum echten Hingucker wird. Doch auch die Räume unter dem Satteldach haben auf mehr als 160 m² Wohnfläche vieles zu bieten: Von der Diele haben Sie Zugang in die Küche mit angeschlossenem Wohn-Ess-Bereich. Im Erdgeschoss führen fünf Türen nach draußen und sorgen zugleich für viel Licht. Ebenfalls auf dieser Etage: WC, Hauswirtschaftsraum sowie ein weiterer Raum, der als Gästezimmer oder Büro genutzt werden kann. Von der Diele führt auch eine Treppe ins Dachgeschoss. Hier steht den Eltern ein großes Reich mit direkt angeschlossenem Ankleidezimmer zur Verfügung, und auch für zwei Kinder ist viel Platz zum Toben, Schlafen, Spielen oder Lernen. Ein echtes Highlight: das knapp 16 m² große Badezimmer.
Lage
Das Grundstück befindet sich in einer neu entstehenden kleinen Wohnsiedlung im Ortsteil Deutsch Wusterhausen der Stadt Königs Wusterhausen. Die Bebauung erfolgt nach gültigem Bebauungsplan, wodurch eine schnelle Genehmigung und zügige Bauausführung möglich ist. Die Siedlung entsteht entlang einer ruhigen Privatstraße und bietet ein geschütztes, familienfreundliches Wohnumfeld.Die Umgebung ist geprägt von Ein- und Zweifamilienhäusern, viel Grün und einer aufgelockerten Siedlungsstruktur. Einkaufsmöglichkeiten, Schulen, Kitas sowie medizinische Versorgung befinden sich im nahegelegenen Stadtzentrum. Über ÖPNV, die A10 und die B179 besteht eine sehr gute Anbindung nach Berlin und in das weitere Umland.
Eine leistungsstarke Internetverbindung ist vorhanden - ideal für Homeoffice und alle digitalen Arbeitsformen. Damit verbindet die Lage ruhiges Wohnen im Grünen mit moderner Infrastruktur und hoher Planungssicherheit.
Wichtiger Hinweis: Aus Diskretionsgründen erhalten Sie detaillierte Informationen zum Grundstück ausschließlich in einem persönlichen Gespräch. Bitte beachten Sie, dass das Grundstück nur in Kombination mit einem individuell geplanten Bauprojekt mit OKAL Haus angeboten wird. Wir freuen uns darauf, Sie bei der Verwirklichung Ihres Traumhauses zu begleiten.
Daten
- Kaufpreis : 521.900,00 €
- Räume: 5.00
- Größe: 142,00 m2
- Objekt Typ: Haus
- Energie:
Fragen Sie uns
Bekomme Information oder vereinbare einen Termin
betreffend Objekt