Der beste gute Vorsatz für 2026 - endlich raus aus der Miete*
Zusätzliche Informationen
Leichter finanzieren. Sicher einziehen.
Mit bis zu 49.000 EUR Preisvorteil für Ihr neues Zuhause.
Sichern Sie sich einen unschlagbaren Preisvorteil von bis zu 49.000 EUR auf unsere Aktionshäuser.*
Wir möchten Ihnen nicht nur ein Haus, sondern ein Zuhause schaffen, in dem Sie sich rundum wohlfühlen. Um dieses Ziel zu erreichen haben wir exklusive Häuser für Sie ausgewählt, die nicht nur dank des unschlagbaren Aktionspreises attraktiv sind, sondern sich auch durch ihre herausragende Qualität und ihr zeitloses Design auszeichnen.
Beschreibung
Starten Sie 2026 mit dem besten Vorsatz: ins eigene Zuhause ziehen.
Raus aus der Miete, rein in die eigenen vier Wände - und genau jetzt ist der richtige Zeitpunkt dafür. Mit den OKAL Vorteilstagen vom 01.12. bis 28.02.2026 wird Ihr Traum vom Eigenheim besonders attraktiv: Küche und Bodenplatte sind bereits inklusive.
Das Design 12 ist ein Haus, das schon von außen überzeugt. Die markante, farbige Fassadengestaltung macht es zu einem echten Blickfang - modern, individuell und zeitlos zugleich.
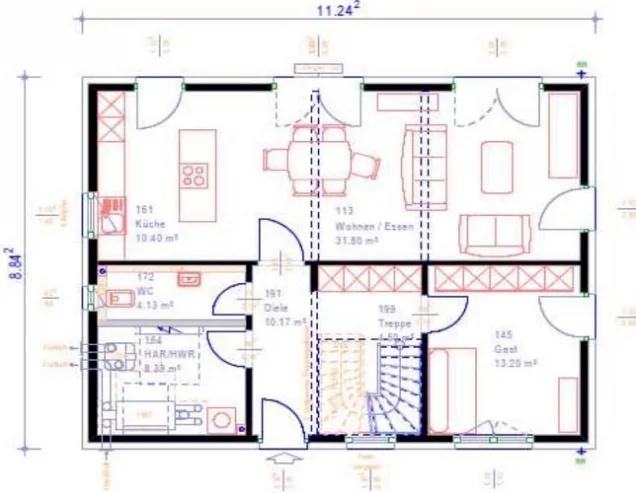
Im Inneren erwarten Sie über 160 m² Wohnfläche, die Raum für Ihre Zukunft bieten. Von der einladenden Diele gelangen Sie in die Küche mit offenem Wohn- und Essbereich - der perfekte Mittelpunkt für gemeinsames Leben, Lachen und Ankommen. Fünf Türen ins Freie im Erdgeschoss sorgen für viel Tageslicht und ein offenes Wohngefühl. Ergänzt wird diese Ebene durch ein WC, einen Hauswirtschaftsraum sowie ein zusätzliches Zimmer, das sich ideal als Homeoffice, Gäste- oder Hobbyraum eignet.
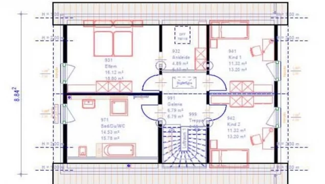
Über die Treppe erreichen Sie das Dachgeschoss: ein echtes Rückzugsparadies. Die Eltern genießen ein großzügiges Schlafzimmer mit direkt angeschlossenem Ankleidezimmer, während zwei Kinderzimmer viel Platz zum Spielen, Lernen und Wachsen bieten. Ein besonderes Highlight ist das rund 16 m² große Badezimmer - perfekt für entspannte Morgen und ruhige Abende.
2026 kann Ihr Jahr im eigenen Haus werden.
Nutzen Sie die Vorteilstage - denn der beste Zeitpunkt, um mit dem Hausbau zu starten, ist jetzt.
Lage
Das 1.002 m² große Grundstück, bietet eine gute Gelegenheit, den Traum vom eigenen zu Hause zu verwirklichen. Mit seiner großzügigen Fläche bietet es die Möglichkeit, ein individuelles und maßgeschneidertes Haus zu errichten. Ob ein großer Wohnbereich, zusätzliche Zimmer für Gäste oder ein Arbeitszimmer - hier lassen sich die eigenen Wohnträume verwirklichen.Das Grundstück bietet ausreichend Platz für ein geräumiges Einfamilienhaus mit einem schönen Garten, in dem man sich entspannen und die Natur genießen kann.
Die Stadt Lübben (Spreewald) ist Kreisstadt des Landkreis Dahme-Spreewald und zählt mit seinen 6 Ortsteilen/Stadtbezirken ungefähr 14.500 Einwohner. Die Stadt liegt im Herzen des Spreewaldes und hat sich als touristisches, kulturelles und wirtschaftliches Zentrum im Süden des Landkreises Dahme-Spreewald etabliert Die Gastfreundlichkeit, die einzigartige Natur- und Kulturlandschaft und die mystische Wasserwelt fernab von jedem Trubel machen die Stadt zu einem "Staatlich anerkanntem Erholungsort". In dem UNESCO-Biosphärenreservat verbinden sich mehr als 300 km befahrbare Fließe zu einem blauen Labyrinth.
Lübben hat eine sehr gute Infrastruktur mit Geschäften, verschiedenen Schulen, medizinischen und sozialen Einrichtungen und vielen Freizeitangeboten für Jedermann. Somit lässt es sich hier hervorragend Leben und Arbeiten.
Wichtiger Hinweis: Aus Diskretionsgründen erhalten Sie detaillierte Informationen zum Grundstück ausschließlich in einem persönlichen Gespräch. Bitte beachten Sie, dass das Grundstück nur in Kombination mit einem individuell geplanten Bauprojekt mit OKAL Haus angeboten wird. Wir freuen uns darauf, Sie bei der Verwirklichung Ihres Traumhauses zu begleiten.
Daten
- Kaufpreis : 456.900,00 €
- Räume: 5.00
- Größe: 142,00 m2
- Objekt Typ: Haus
- Energie:
Fragen Sie uns
Bekomme Information oder vereinbare einen Termin
betreffend Objekt